电脑桌面
添加蜗牛文库到电脑桌面
安装后可以在桌面快捷访问

地铁明挖基坑支撑施工关键技术.pdfVIP免费

地铁明挖基坑支撑施工关键技术.pdf_第1页
地铁明挖基坑支撑施工关键技术.pdf_第2页
地铁明挖基坑支撑施工关键技术.pdf_第3页
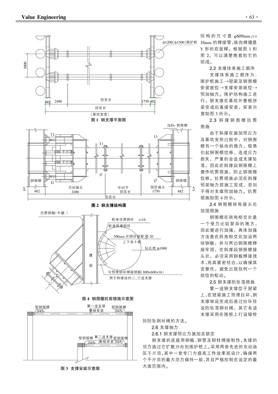
价值工程0引言地铁可以在少量占用地上资源的前提下极大程度地缓解城市交通压力,目前已成为中、大城市中建设需求,而由于地铁车站多建于已有城区,其施工范围受限,因此通常需要进行深大基坑开挖。地铁明挖基坑的支撑是整个施工的关键环节,对施工安全起到重要作用。本文依托重庆轨道交通十号线车站项目,对地铁明挖基坑支撑施工的关键点进行阐述,以期为相关工程提供参考。1工况概况大礼堂站耀曾家岩站区间隧道工程起讫里程YK9+572.902耀YK10+122.727,区间长约549.825m,其中YK9+572.902耀YK9+632.145、YK9+833.300耀YK9+909.539为明挖段,长度135.482m;YK9+632.145耀YK9+833.300段采用盖挖法施工,长度201.155m;YK9+909.539耀K10+122.727为暗挖段,长度213.188m。在大礼堂站至曾家岩站之间,由于该地块的土方开挖、支护和降水工程达到了危险的工程标准,因此必须要求在此地块的最大深度(含5m)达到17m,而且该地块的横截面也在5~6米之间,因此,必须要求在获得专家认证和审核之后,才能够正式启动该地块的建设工作。大礼堂站耀曾家岩站区间明挖段围护结构采用桩+内撑的围护方式,围护桩合计196根,钢支撑合计32根,冠梁长度合计456m,结构细部尺寸如下:淤基坑:明挖段结构总长合计135.482m,最大宽度15.5m,最大深度17m。于在YK9+572.902~YK9+632.145里程段,防护桩选用渍1000mm@2000mm的钻孔灌注桩,嵌入水深在12~17m之间,其中,主筋选用24C25,加固筋选用C22@2000mm,箍筋选用A12@150mm(冠梁底部、基坑底、钢支撑上下1500mm位置增加箍筋,100mm处增设箍筋),定位筋选用A10@2000mm,以确保桩的稳定性和安全性。在现场,我们使用了渍50*3.5mm的声测管,并在原有的位置进行了桩孔浇灌,总共完成了58根桩。YK9+833.300耀YK9+909.539里程段围护桩采用椎1000mm@1500mm钻孔灌注桩,孔桩嵌固深度为15耀21m,主筋为24C28,加强筋C22@2000mm,箍筋A12@150mm(冠梁底部、基坑底、钢支撑上下1500mm位置加密A12@100mm),定位筋A10@2000mm,声测管椎50*3.5mm,围护桩钻孔施工均从原地面开始,钻至孔桩底标高结束,钻孔灌注桩合计79根。盂冠梁:1000伊1000mm。榆钢支撑:采用准609钢管支撑,壁厚16mm。钢围檩采用工45C组合腰梁。钢板、型钢材料为Q345钢。虞双层钢筋网片A10@150伊150,采用C25喷射技术,将混凝土厚度提高至15mm。愚采用板肋式锚杆结构的防护墙:其中,板材厚度为200mm,而支撑梁宽度为300伊400mm。舆混凝土强度等级、钢筋型号:C30,H...

1、当您付费下载文档后,您只拥有了使用权限,并不意味着购买了版权,文档只能用于自身使用,不得用于其他商业用途(如 [转卖]进行直接盈利或[编辑后售卖]进行间接盈利)。
2、本站所有内容均由合作方或网友上传,本站不对文档的完整性、权威性及其观点立场正确性做任何保证或承诺!文档内容仅供研究参考,付费前请自行鉴别。
3、如文档内容存在违规,或者侵犯商业秘密、侵犯著作权等,请点击“违规举报”。

碎片内容

蜗牛文库的最新文档

二年级数学下册其中检测卷二年级数学下册其中检测卷附答案#期中测试卷.pdf
10.00金币
0下载
二年级数学下册期末质检卷(苏教版)二年级数学下册期末质检卷(苏教版)#期末复习 #期末测试卷 #二年级数学 #二年级数学下册#关注我持续更新小学知识.pdf
10.00金币
0下载
二年级数学下册期末混合运算专项练习二年级数学下册期末混合运算专项练习#二年级#二年级数学下册#关注我持续更新小学知识 #知识分享 #家长收藏孩子受益.pdf
10.00金币
1下载
二年级数学下册年月日三类周期问题解题方法二年级数学下册年月日三类周期问题解题方法#二年级#二年级数学下册#知识分享 #关注我持续更新小学知识 #家长收藏孩子受益.pdf
10.00金币
0下载
二年级数学下册解决问题专项训练二年级数学下册解决问题专项训练#专项训练#解决问题#二年级#二年级数学下册#知识分享.pdf
10.00金币
1下载
二年级数学下册还原问题二年级数学下册还原问题#二年级#二年级数学#关注我持续更新小学知识 #知识分享 #家长收藏孩子受益.pdf
10.00金币
1下载
二年级数学下册第六单元考试卷家长打印出来给孩子测试测试争取拿到高分!#小学二年级试卷分享 #二年级第六单考试数学 #第六单考试#二年级数学下册.pdf
10.00金币
0下载
二年级数学下册必背顺口溜口诀汇总二年级数学下册必背顺口溜口诀汇总#二年级#二年级数学下册 #知识分享 #家长收藏孩子受益 #关注我持续更新小学知识.pdf
10.00金币
0下载
二年级数学下册《重点难点思维题》两大问题解决技巧和方法巧算星期几解决周期问题还原问题强化思维训练老师精心整理家长可以打印出来给孩子练习#家长收藏孩子受益 #学霸秘籍 #思维训练 #二年级 #知识点总结.pdf
10.00金币
0下载
二年级数学下册 必背公式大全寒假提前背一背开学更轻松#二年级 #二年级数学 #二年级数学下册 #寒假充电计划 #公式.pdf
10.00金币
0下载
蜗牛文库+ 关注
实名认证
内容提供者

提供各种专业文档内容

确认删除?
QQ
  • QQ点击这里给我发消息
微信客服
  • 微信客服
回到顶部