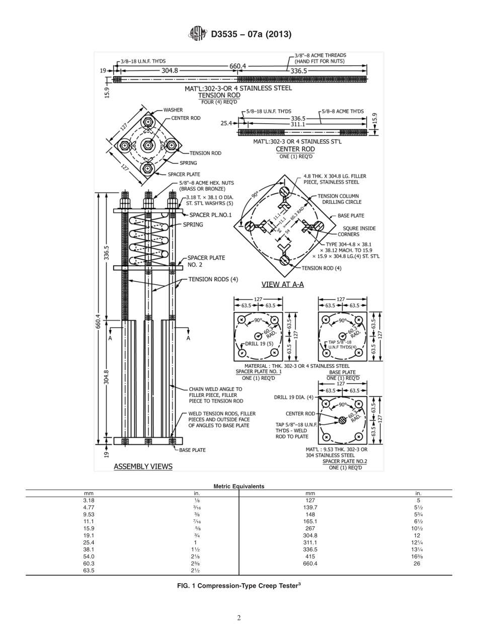
Designation:D3535−07a(Reapproved2013)StandardTestMethodforResistancetoCreepUnderStaticLoadingforStructuralWoodLaminatingAdhesivesUsedUnderExteriorExposureConditions1ThisstandardisissuedunderthefixeddesignationD3535;thenumberimmediatelyfollowingthedesignationindicatestheyearoforiginaladoptionor,inthecaseofrevision,theyearoflastrevision.Anumberinparenthesesindicatestheyearoflastreapproval.Asuperscriptepsilon(´)indicatesaneditorialchangesincethelastrevisionorreapproval.1.Scope1.1Thistestmethodcoversadhesivessuitableforthebondingofwood,includingtreatedwood,intostructurallaminatedwoodproductsforgeneralconstruction,formarineuse,orforotheruseswhereahigh-strengthgeneralconstruction,creep-resistant,waterproofadhesivebondisre-quired.1.2ThevaluesstatedinSIunitsaretoberegardedasthestandard.Thevaluesgiveninparenthesesareforinformationonly.1.3Thisstandarddoesnotpurporttoaddressallofthesafetyconcerns,ifany,associatedwithitsuse.Itistheresponsibilityoftheuserofthisstandardtoestablishappro-priatesafetyandhealthpracticesanddeterminetheapplica-bilityofregulatorylimitationspriortouse.2.ReferencedDocuments2.1ASTMStandards:2A125SpecificationforSteelSprings,Helical,Heat-TreatedD907TerminologyofAdhesivesD2559SpecificationforAdhesivesforBondedStructuralWoodProductsforUseUnderExteriorExposureCondi-tions3.Terminology3.1Definitions:3.1.1glulam,n—synonymforstructural-glued-laminatedtimber.3.1.2structural-glued-laminatedtimber,n—anengineered,stress-ratedproductofatimberlaminatingplantcomprisingassembliesofspeciallyselectedandpreparedwoodlamina-tionssecurelybondedtogetherwithadhesives,withthefol-lowingcharacteristics:(1)thegrainofalllaminationsisapproximatelyparallellongitudinally;and(2)thelaminationsmaybecomprisedofpiecesend-joinedtoformanylength,ofpiecesplacedorgluededge-to-edgetomakewideronesorofpiecesbenttocurvedformduringgluing.(Synonymglulam)ANSI/AITCA190.1–2002,AmericanNationalStandardforWoodProducts—StructuralGluedLaminatedTimber(EditedtoconformwithASTMformat).3.1.3Forothertermsus...